鄭州杰凱生產的z型連續式斗式提升機是將顆粒物料輸送到一定高度和水平距離的上料設備,可以獨立使用,也可與我司的組合秤或者自動包裝機配合使用,整機運行平穩,故障率低。
一、z型連續式斗式提升機概述。
應用于糧食、食品、飼料、化工等行業中顆粒及粉料的垂直提升輸送。可與包裝機組成定量自動包裝系統,廣泛應用于食品包裝行業。以304不銹鋼為主要機架結構,食品級聚丙烯輸送斗,安全衛生。由控制電路和料位控制實現自動進、停。
二、z型連續式斗式提升機產品特點。
1、能迅速將顆粒物料輸送到一定的水平距離和垂直高度。
2、可實現微機控制,自動化程度高。
3、z型連續式斗式顆粒提升機操作簡便,維修方便。
4、耐酸、堿、油性及輸送腐蝕性物料。
5.z型連續式斗式提升機由304不銹鋼和PP塑料組成,可用于食品級物料的輸送。
6.材料在運輸過程中基本沒有損壞,不破壞物料自身特性。
7.斗可快速、均勻進料,無堵顆粒料、空料等現象。
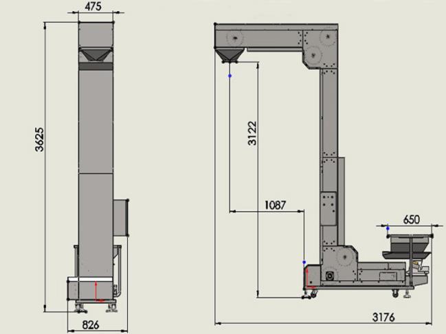
三、z型連續式斗式提升機技術參數。
電源:0.75-1.5kw。
適用輸送物料:一般輸送顆粒類物料為宜
輸送料斗尺寸:1.6L(420*140*70)(食品級PP材料)
電壓:220v/380v50hz。
外觀尺寸:L2300*W1000*1250mm。
設備重量:500-600kg。
四、z型連續式斗式提升機工作原理:

五、產品綜述:
z型連續式斗式提升機。
1.z型連續式斗式提升機與顆粒包裝機配合使用,在不需要人工干預的情況下,可完全自動化。
2、整機設計合理,結構緊湊,全密封設計,無粉塵泄漏,生產環境干凈;
3.通常采用自流式進料結構。若有特殊要求,可設計成電磁振動進料。
4、設計合理,容易清潔;
5.與其它廠家顆粒包裝機配合使用,可按客戶包裝機規格定做。
6.廠家直銷,優質產品,售后有保障,價格優惠;
六、z型連續式斗式顆粒提升機適用的物料





客服1